

- 微信客服
工作时间 09:00-23:00
北京市高等教育自学考试课程考试大纲
课程名称:设计表达 课程代码:14167(笔试) 2024年9月版
第一部分 课程性质与设置目的
一、课程性质与特点
《设计表达》是北京市高等教育自学考试艺术设计(专科)专业学生必考课程。是检验应考者对专业设计的把握情况而设置的一门课程。本课程采取“笔试加实践”考核方式,《设计表达》要求应考者把握室内外设计思想和设计概念的手绘表现技术,包括室内外透视效果图等表现手法。以艺术设计的室内设计系列为研究课题,如对室内外平面图、立面图、效果图的设计思考研究,根据表达内容不同选择不同的透视方法和角度等。《设计表达》是设计师用来表达设计意图的方法,它既是一种语言,又是设计的组成部分。学习手绘效果图的任务是通过对构图与透视技巧的表现来忠实地表达设计师设计意图,并能提高设计方案的速度和增强表达设计的能力及方案表现必备技能,具备从事艺术设计师岗位所必需的设计表达等职业素养,课程符合专业人才培养目标和专业相关技术领域职业岗位的任职要求。手绘表现技法课程是根据艺术设计专业人才培养方案中职业岗位及职业能力分析表中的工作任务来设置的。 通过透视的原理与方法。注重理论与实际相结合,深入浅出地梳理了设计的透视学原理及画法、马克笔着色、以及具体的配色技巧与方法等等,课程突出特点即运用理论知识的同时,又非常注重设计实践的指导性及实用性。
本大纲是根据教育部制定的高等教育自学考试艺术设计专业培养目标编写的,立足于培养高素质人才,适应艺术设计专业的培养方向。
二、课程目的与基本要求
本课程的目标是全面贯彻落实立德树人根本任务,让学生学会设计的手绘快速表达,使学生了学会绘制各功能空间的平面图,立面图及效果图的设计方案绘制为根本任务依据高等职业教育的培养目标定位和地区市场对人才需求的变化,针对学生的基本情况,因材施教,突出创新精神,强化职业技能培养,促进知识、能力、素质协调发展。通过本课程的学习同学们熟练地进行手绘设计方案的设计设计表达,具备设计公司及企事业单位人才岗位要求。
课程基本要求:(1)让学生了解手绘的意义、作用及特点;理解透视原理;熟练掌握透视的画法(一点透视画法,二点透视画法,一点斜透视画法)。
(2)强化透视方法。提高学生对空间家具的造型及空间比例和合理构图。
(3)熟练掌握马克笔快速着色的方法(马克笔排笔基本方法---家具单体着色---室内空间着色---室外空间着色)。
(4)通过对典型室内项目设计的手绘快速表达,使学生了学会绘制各功能空间的平面图,立面图及效果图的设计方案绘制。
(5)通过对典型景观项目设计的手绘快速表达,使学生了学会绘制别墅景观空间设计方案的平面图,立面图及效果图的设计方案绘制。
本课程的考核章节是:第一至六章。重点章节是三、四、五、六章。
三、与本专业其他课程的关系
《设计表达》是艺术设计(专科)专业必修课程,它与本专业的《设计基础》课程有着密切的关系,在修本课程前需要学习掌握《设计基础》课程,领会和掌握设计的审美法则,最终达到灵活运用,融会贯通,提高审美能力,为设计表达打下良好的基础。
第二部分 考核内容与考核目标
第一章 室内设计手绘表现基础
一、学习目的与要求
通过本章学习,让学生了解手绘的意义、作用及特点,室内手绘的常用工具,掌握手绘线条的几种画法,线条的练习是学习手绘表达的基础性练习。掌握准确工整快速的线条是每个设计者应该掌握的技能。掌握室内陈设家具及各种装饰材质的线条表达等多个知识点。
二、考核知识点与考核目标
(一)室内手绘的常用工具
识记: 室内手绘的常用工具有哪些种类和名称
(二)手绘线条基础
识记:线条的表达种类及画法
理解:直线的练习窍门,不同线条的性格及练习线条的姿势,空间线条表现的作用。
应用:手绘线条的几种不同表现及画法并会灵活运用
(三)室内陈设
识记:室内陈设家具中空间,家具装饰及设计的关系
理解: 软装的定义及陈设的分类;织物表现基本技法;花艺与绿植的近景中景远景表达要点;木质材料及其表现;石质材料及其表现;
应用:室内陈设单体与组合的画法及室内装饰材料的线条表达方法并学会灵活运用
第二章 透视技法及空间线稿表现
一、学习目的与要求
通过本章学习,理解透视原理及基本概念;熟练掌握透视的画法(一点透视画法,二点透视画法,一点斜透视画法)
二、考核知识点与考核目标
(一)室内构图原理与构图形式
理解:了解视点的选择的原则,及构图形式。
应用: 掌握一点、二点、一点斜透视详解与步骤,并达到灵活运用。
(二)室内空间透视步骤图
理解:客厅空间表现步骤;某商业空间表现步骤。
应用:学会室内空间透视步骤,并会灵活运用到设计中。
(三)室内空间精细线稿表现
应用:学会室内空间精细图的表现,并会灵活运用到设计中。
(四)室内空间快速设计草图
应用:学会室内空间快速草图的表现,并会灵活运用到设计中。
第三章 空间透视构建方法论
一、学习目的与要求
通过本章学习,掌握室内平立面图图例及绘制;比例的概念、种类、标示方法;尺寸的单位、尺寸的标注排列方式;平面升空间的画法;用平面升空间方法不同空间表达。
二、考核知识点与考核目标
(一)室内平面图图例与平面立图绘制
识记:平立面制图图例。
理解:室内家具尺寸参考;比例的概念、种类、标示方法;尺寸的单位、尺寸的标注。
应用:学会用平面升空间的画法完成不同空间的效果图线稿。
(二)不同空间平立面表达
应用:学会不同空间平立面表达的线稿。
(三)平面升空间
理解:以卧室及客厅平面升空间为例与同一个平面不同观察角度平面升空间表现效果图解析,掌握平面升空间的绘图方法;同一个平面不同观察角度平面升空间表现效果解析
应用:用A3纸根据平面升空间的步骤画出临摹卧室及客厅效果图线稿。
第四章 色彩部分
一、学习目的与要求
在本章的学习使学生了解着色工具的介绍,掌握室内体块与不同材质色彩(彩铅马克笔着色)表现、陈设配饰马克笔表现、室内平立面上色等技法表现设计方法、空间马克笔上色步骤,最后灵活运用马克笔进行室内空间效果图着色。
二、考核知识点与考核目标
(一)着色工具介绍
识记:着色工具介绍及不同着色工具彩铅马克笔着色表现;
理解:色光与色彩的基本原理
(二)室内体块与材质色彩表达
识记:了解马克笔的几种笔触。
理解:木色立方体马克笔着色表达的技巧;马克笔笔触在空间中的变化;马克笔形体塑造虚实过渡和特殊手法。
应用:掌握马克笔体块色彩练习,虚实过渡和特殊手法。
(三)彩铅的表现方法
应用:掌握彩铅的笔触表现与马克笔结合的表现方法并学会灵活运用的设计表达中。
(四)水彩的表现方法
识记:水彩表现效果图的特点。
(五)不同的材质表现
应用:掌握马克笔木质、玻璃与镜面、石材、织物、墙面、金属重色材质的表现、灯光、材质与灯光综合的表现方法并学会灵活运用的设计表达中。
(六)陈设、配饰马克笔表现
理解:掌握室内陈设、配饰马克笔上色要点和注意事项。
应用:掌握用马克笔着色单体沙发及沙发组合、卧室空间、桌椅、室内植物、茶几与柜类、其他陈设与其他陈设组合、局部空间马克笔的表现方法并学会灵活运用的设计表达中。
(七)室内平立面图上色
理解:掌握室内陈设、配饰马克笔上色要点和注意事项。
应用:掌握用马克笔与彩铅及马克笔彩铅结合进行平、立、面图上色绘制要点方法并学会灵活运用的设计表达中。
(八)空间马克笔上色步骤图
应用:掌握客厅、别墅客厅上、餐饮空间、公共空间、办公空间、马克笔上色步骤及绘制要点方法并学会灵活运用的设计表达中。。
第五章 室内空间快题设计
一、学习目的与要求
通过本章学习,我们能够独立完成空间快题设计。
二、考核知识点与考核目标
(一)设计师与草图
识记:设计师与方案草图与设计的关系。
应用:掌握方案草图的表达并灵活到设计表现中。
(二)室内快题设计的概念
识记:了解室内快题设计的概念。
理解:快题设计的应用意义。
(三)室内快题设计特征
识记:室内快题设计特征的创意概念定位注意的问题。
应用:掌握室内快题设计特征并做到灵活应用到设计表达中。
(四)室内快题设计的表达原则
识记:了解室内快题设计的表达原则。
理解:生态化设计原则需要考虑的要素有哪些。
(五)室内快题设计功能分区与流程分析
识记:任务书的分析;对建筑图的分析。
理解:室内设计流线分析。
(六)快题设计表现程序与要点
识记:了解快题设计表现程序与要点。
理解:快题设计表现程序分析。
(七)家居室内快题设计案例分享
理解:普通住宅室内快题设计要点
应用:临摹住宅室内设计快题案例
(八)公共空间快题设计要素
识记:了解公共空间(办公空间、餐饮空间、咖啡厅空间、展示空间)快题设计要素。
理解:掌握公共空间(办公空间、餐饮空间、咖啡厅空间、展示空间)快题设计要素特点及注意事项。
应用:临摹一张室内公共空间空间快题设计的马克笔着色效果图。
(九)快题案例赏析-家居空间
应用:临摹一张室内家具空间空间快题设计的马克笔着色效果图。
(十)快题案例赏析-公共空间
应用:临摹一张室内公共空间空间快题设计的马克笔着色效果图。
第六章 手绘设计作品欣赏
一、学习目的与要求
通过本章学习,我们能欣赏临摹各空间作品欣赏和临摹。
二、考核知识点与考核目标
(一)家居空间
应用:欣赏与临摹家居空间手绘设计作品。
(二)餐饮空间
应用:欣赏与临摹餐饮空间手绘设计作品。
(三)会所空间
应用:欣赏与临摹会所空间手绘设计作品。
(四)办公空间
应用:欣赏与临摹办公空间手绘设计作品。
(五)展示空间
应用:欣赏与临摹展示空间手绘设计作品。
(六)其它空间
应用:欣赏与临摹其它空间手绘设计作品。
第四部分 有关说明与实施要求
一、考核目标的能力层次表述
本大纲在考核目标中按着“识记”“理解”和“应用”等能力层次规定考生应达到的能力层次要求,各能力层次为递进等级关系,后者必须建立在前者的基础上,其含义是:
识记:能知道有关的名词、概念、知识的含义,并能正确认识和表述,是低层次的要求。
理解:在了解的基础上,能全面把握基本概念、基本原理、基本方法与技能,并把握上述内容的区别和联系。
应用:在理解的基础上,能运用基本概念、基本原理、基本方法与技能,分析和解决有关的理论和实际问题,并能够运用多个知识点进行设计制作。
二、指定教材:
《室内设计手绘表现》 庐山艺术特训营教研组编著,辽宁科学技术出版社,2016年出版。
三、自学方法指导
1、在开始阅读指定教材某一章之前,先翻阅大纲中有关这一章的考核知识点与考核目标,以便在阅读教材时做到心中有数,突出重点,有的放矢。 2、在了解考试大纲内容的基础上,根据考核知识点和考核目标,在阅读教材时,要逐段细读,逐句推敲,集中精力,吃透每一个知识点,对基本概念要深刻理解,对基本理论要弄清它的思想,对基本方法要牢固掌握,并融会贯通,在头脑中形成完整的内容体系。 3、在自学过程中,既要思考问题,也要做好阅读笔记,把教材重要的基本概念、原理、方法等加以整理,以便从中加深对问题的认识、理解和记忆,有利于突出重点,并了解整个内容,不断提高自学能力。同时,在自学各章内容时,切勿死记硬背,要在理解的基础上加以记忆,注重理论联系实际,锻炼从实践的角度出发来思考问题,从而达到深层次的认识水平。 4、为了提高自学效果,应结合自学内容,尽可能地多看一些案例分析和动手做一些练习题,以便更好的理解、消化和巩固所学知识,培养分析问题、解决问题的能力。在做练习之前,应认真阅读教材,按考核目标所要求的不同层次,掌握教材内容,在练习过程中对所学知识进行合理的回顾与发挥,注重从实际出发,具体问题具体分析。
四、社会助学的要求
1、应熟知考试大纲对课程提出的总要求和各章的知识点。各助学院校应根据教学大纲,并参照本大纲规定的内容与规范,对指定教材进行系统的教学。 2、应掌握各知识点要求达到的能力层次,并深刻理解对各知识点的考核目标。 3、辅导时,应以考试大纲为依据,指定的教材为基础,不要随意增删内容,以免与大纲脱节。 4、辅导时,应对学习方法进行指导。提倡"认真阅读教材,刻苦钻研教材,主动争取帮助,依靠自己学通"的方法。 5、辅导时,要注意突出重点,对考生提出的问题,不要有问即答,要积极启发引导。 6、注意对应考者能力的培养,特别是对自学能力的培养,要引导考生逐步学会独立学习,在自学过程中培养善于提出问题,分析问题,解决问题的能力。 7、要使考生了解试题的难易与能力层次高低两者不完全是一回事,在各个能力层次中存在不同难度的试题。 8、助学学时:本课程共5学分,建议总课时不少于90学时,建议助学学时分配如下:
章次 | 课程内容 | 助学学时 |
第一章 | 室内设计手绘表现基础 | 10 |
第二章 | 透视技法及空间线稿表现 | 10 |
第三章 | 空间透视构建方法论 | 20 |
第四章 | 色彩部分 | 20 |
第五章 | 室内空间快题设计 | 20 |
第六章 | 手绘设计作品欣赏 | 10 |
总计 | 90 | |
五、关于命题考试的若干规定
1.本大纲各章所提到的内容和考核目标都是考试内容。试题覆盖到章,适当突出重点。
2.笔试的比例一般为识记占30%,理解占30%,应用占40%。
3. 试题难易程度应合理:易、中等难度、难。难题部分比例不超过40%。
4.笔试试题类型一般分为:单项选择题、多项选择题、判断题、简答题、画图题。
5.笔试采用闭卷考核方式,考试时间150分钟,按百分制计分,60分为及格。
6.考生考试时,除携带常规文具外,还需携带:马克笔(套)、尺、针管笔、自动铅笔、橡皮。
六、题型举例
(一)单项选择题
以下工具中不属于室内手绘常用工具的是
A 笔类 B 纸类 C 尺类 D 涮笔筒
(二)多项选择题
.线描的表现的两种画法包括
A 工具 B 针管笔 C徒手 D 尺子
(三)判断题
一点透视又叫做平行透视。( )
(四)简答题
简述室内家具沙发的常用尺寸。
(五)画图题
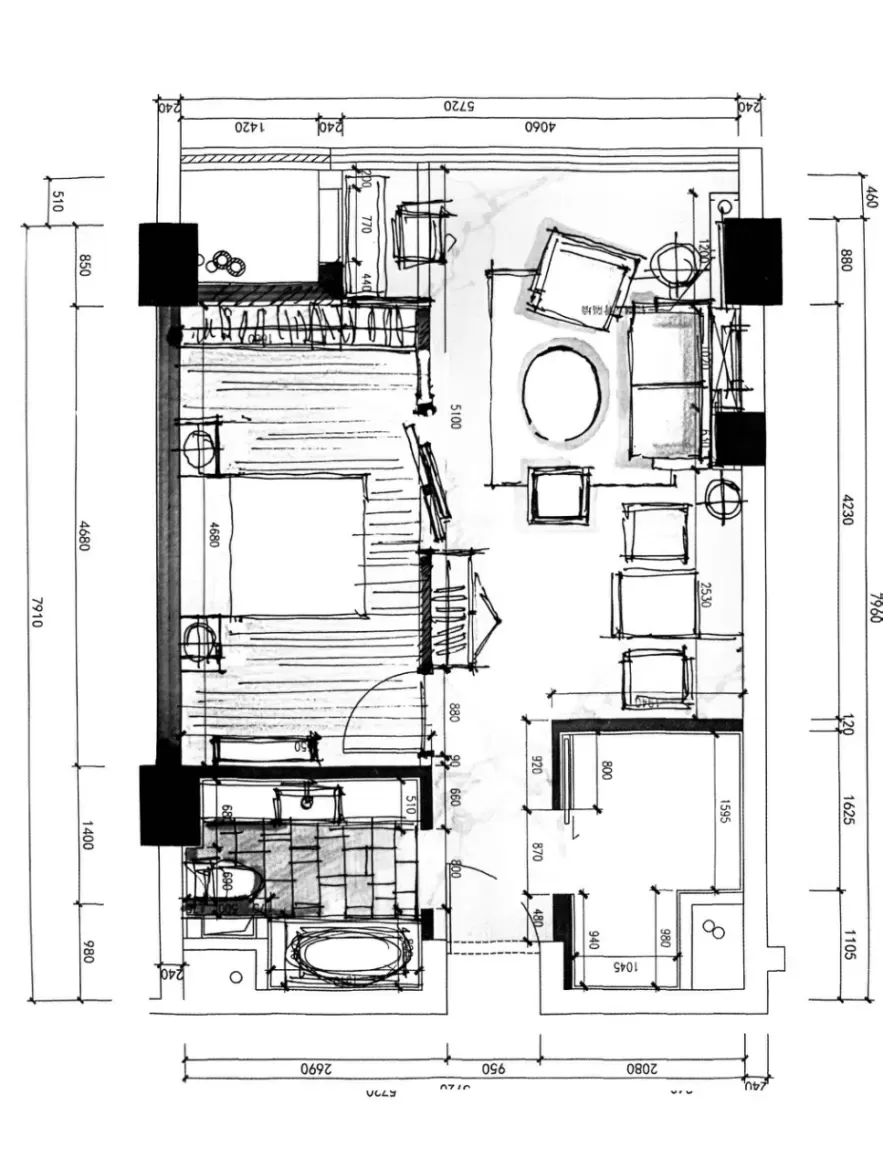
根据以下提供的室内卧室平面图进行临摹及马克笔着色(颜色自定),客厅地面材料为暖色大理石,卧室为实木复合地板(暖色),卫生间地面材料为瓷砖(冷暖色调皆可)需准备的工具:马克笔一套,针管笔分别是:0.3,0.6,0.9,橡皮,自动铅笔或铅笔,直尺。

实践课程考核范围
1.课程名称:设计表达(实践) 课程代码:14168
2.指定教材:《室内设计手绘表现》,庐山艺术特训营教研组编著,辽宁科学技术出版社,2016年版。
3.考核章节:第一章——第六章,重点章节:第三章——第六章。


工作时间 09:00-23:00