

- 微信客服
工作时间 09:00-23:00
湖北省高等教育自学考试课程考试大纲
课程名称:高层建筑结构设计 课程代码:06001
第一部分 课程性质与目标
一、课程性质与特点
本课程是土木工程专业专业课之一,课程的依据是《高层建筑混凝土结构技术规程》(JGJ3-2002),课程中的框架结构设计方法也可用于多层钢筋混凝土结构设计中,本课程主要讲述了高层建筑常用结构形式的受力特点、内力分析方法(手算),也结合高规讲述了高层建筑结构设计中的各种规定和构造要求,框架结构设计方法(抗震)是毕业设计中要用到的知识。
二、 课程目标与基本要求
通过本课程的学习,使学生了解高层建筑结构布置原则、结构受力特点、内力分析方法、高规中设计规定,其中框架设计方法为重点,应掌握并能应用。了解剪力墙结构、框-剪结构计算方法。
三、 与本专业其他课程的关系
本课程一般在大学四年级第一学期开设,本课程是以《钢筋混凝土结构设计》为基础,钢筋混凝土基本构件设计方法在本课程中不再详加讲述,本课程的学习要求学生有一定的数学力学基础,故本课程开设前《结构力学》应已学完。
第二部分 考核内容与考核目标
第一章 概述
一. 学习目的与要求
了解高层建筑的定义、常见的结构形式,了解国内外高层建筑发展的现状,及未来发展的方向。
二. 课程内容
第一节 高层建筑和高层建筑结构定义
第二节 高层建筑结构的功能
第三节 高层建筑的结构型式
第四节 高层建筑结构的发展与展望
三. 考核知识点与考核目标
识记:高层建筑的结构型式,各结构类型在实际工程的应用。
第二章 高层建筑结构受力特点和结构概念设计
一. 学习目的与要求
通过本章学习,使学生进一步了解高层建筑所受荷载种类、特点、计算方法,结构平面布置、竖向布置的注意事项,各种结构类型的特点的适用情形。
二. 课程内容
第一节 高层建筑结构上的荷载与作用
第二节 高层建筑结构的受力特点和工作特点
第三节 高层建筑结构的结构体系和结构布置
第四节 高层建筑结构的概念设计
三. 考核知识点与考核目标
识记:基本风压,风载体形系数,风压高度系数,三水准抗震设计目标,两阶段抗震设计方法,抗震设防类别,底部剪力法,反应谱曲线,特征周期,重力荷载代表值,结构基本自振周期,A级高度建筑,B级高度建筑。
领会:柱轴力预估方法,底部剪力法适用条件,基本自振周期计算方法,伸缩缝、沉降缝、防震缝的区别,结构扭转为主的第一自振周期的要求,结构竖向布置基本原则,框架结构、剪力墙结构、框-剪结构的特点及适用房屋类型、高度,结构概念设计的要点。
第三章 结构设计的一般原则
一. 学习目的与要求
通过本章学习,使学生了解结构设计基本规定:荷载效应组合表达式,构件承载力计算表达式,高层建筑水平荷载下侧移的限值,抗震等级的确定,为保证结构延性在设计中采用的方法。
二. 课程内容
第一节 基本假定
第二节 荷载效应及地震作用效应组合
第三节 构件承载力、结构稳定验算和抗倾覆验算
第四节 高层建筑结构水平位移限值
第五节 罕遇地震作用下薄弱层抗震变形验算
第六节 设计要点及程序框图
三. 考核知识点与考核目标
识记:刚性楼板假定,构件承载力抗震调整系数,层间位移,罕遇地震、多遇地震、设防烈度地震,楼层屈服强度系数,抗震等级,强柱弱梁原则,强剪弱弯原则。
领会:高层建筑结构设计常采用的基本假定,有震组合与无震组合的区别,框架结构水平位移限值,为达到“大震不倒”目的采用的办法,保证结构延性的方法要点。
第四章 框架结构设计
一. 学习目的与要求
通过本章学习,使学生了解框架结构受力特点,掌握框架在竖向、水平荷载下内力分析方法,进一步理解内力组合的规定,了解框架构造要求。
二. 课程内容
第一节 框架结构概念设计
第二节 框架结构内力和位移的简化近似计算
1. 基本假定
2. 计算单元和计算简图
3. 竖向荷载作用下内力分析――分层法
4. 水平荷载作用下内力分析――反弯点法
5. 水平荷载作用下内力分析――D值法
6. 框架结构水平侧移的近似计算
第三节 框架梁、柱截面设计及节点设计
1. 荷载效应组合
2. 控制截面内力
3. 框架柱设计弯矩计算
4. 框架柱设计剪力计算
5. 框架梁设计剪力计算
6. 框架柱抗剪承载力计算
7. 框架梁柱其他承载力设计计算
8. 框架梁柱节点核心区截面抗震验算
第四节 框架结构构造
三. 考核知识点与考核目标
识记:分层法,反弯点法,D值法,剪切型变形形态,轴压比,柱体积配箍率。
领会:分层法的基本假定,分层法修正误差的方法,反弯点法基本假定,反弯点法与D值法的异同,强柱弱梁原则在本章中的体现,梁柱箍筋加密的规定,承载力计算与位移验算所用荷载值的不同之处。
应用:用分层法、D值法进行框架内力分析
第五章 剪力墙结构设计
一. 学习目的与要求
了解剪力墙结构分类,内力分析方法,截面设计,构造要求,重点是双肢墙、壁式框架。
二. 课程内容
第一节 剪力墙结构概念设计
1. 剪力墙结构的受力变形特点
2. 剪力墙的结构布置
3. 剪力墙最小厚度及材料强度选定
4. 剪力墙设计计算要点
第二节 剪力墙结构的内力和侧移的简化近似计算
1. 基本假定
2. 竖向荷载作用下的内力计算
3. 水平荷载作用下的计算单元和计算简图
4. 水平荷载的分配
5. 平面剪力墙分类及受力特点
6. 整体墙的内力和位移计算
7. 小开口整体墙的内力与位移计算
8. 双肢墙的内力位移计算
9. 壁式框架的内力和位移计算
第三节 剪力墙结构截面设计
第四节 剪力墙结构构造
三. 考核知识点与考核目标
识记:双肢墙,壁式框架,小开口整体墙,整体墙,剪力墙的整体系数α,刚域,构造边缘构件,约束边缘构件,暗柱,
领会:按照整体系数α的剪力墙分类法,双肢墙的基本假定、连续连杆法,整体系数α对双肢墙内力侧移的影响,双肢墙内力计算方法,壁式框架刚域长度的取法,壁式框架梁转动刚度计算方法,剪力墙正截面承载力计算方法。
第六章 框架-剪力墙结构设计
一、 学习目的与要求
了解框-剪结构的受力特点,结构布置的注意事项,框-剪结构分类,微分方程的建立,框-剪结构内力实际的计算步骤,框-剪结构内力和位移的特性。
二、 课程内容
第一节 框架-剪力墙结构概念设计
1. 框架-剪力墙结构变形、受力特点
2. 框架-剪力墙结构方案的选定
3. 构件截面尺寸估算及材料强度等级选定
第二节 框架-剪力墙结构内力和位移的简化近似计算
第三节 框架-剪力墙结构截面设计及构造
三、 考核知识点与考核目标
识记:铰接体系,刚接体系,刚度特征值λ,连梁的约束弯矩
领会:框-剪结构布置的要求,刚度特征值λ对框-剪结构内力位移的影响,微分方程的剪力,框架、剪力墙内力实际计算步骤。
第三部分 有关说明与实施要求
一、考核的能力层次表述
本大纲在考核目标中,按照“识记”、“领会”、“应用”三个能力层次规定其应达到的能力层次要求。各能力层次为递进等级关系,后者必须建立在前者的基础上,其含义是:识记:能知道有关的名词、概念、知识的含义,并能正确认识和表述,是低层次的要求。
领会:在识记的基础上,能全面把握基本概念、基本原理、基本方法,能掌握有关概念、原理、方法的区别与联系,是较高层次的要求。
应用:在理解的基础上,能运用基本概念、基本原理、基本方法联系学过的多个知识点分析和解决有关的理论问题和实际问题,是最高层次的要求。
二、教材
1.指定教材: 《高层建筑结构设计》,霍达,高等教育出版社,2004.8
2.参考教材: 《高层建筑结构设计》,方鄂华,建筑工业出版社,2004.8
三、自学方法指导
1.在开始阅读指定教材某一章之前,先翻阅大纲中有关这一章的考核知识点及对知识点的能力层次要求和考核目标,以便在阅读教材时做到心中有数,有的放矢。
2.阅读教材时,要逐段细读,逐句推敲,集中精力,吃透每一个知识点,对基本概念必须深刻理解,对基本理论必须彻底弄清,对基本方法必须牢固掌握。
3.在自学过程中,既要思考问题,也要做好阅读笔记,把教材中的基本概念、原理、方法等加以整理,这可从中加深对问题的认知、理解和记忆,以利于突出重点,并涵盖整个内容,可以不断提高自学能力。
4.完成书后作业和适当的辅导练习是理解、消化和巩固所学知识,培养分析问题、解决问题及提高能力的重要环节,在做练习之前,应认真阅读教材,按考核目标所要求的不同层次,掌握教材内容,在练习过程中对所学知识进行合理的回顾与发挥,注重理论联系实际和具体问题具体分析,解题时应注意培养逻辑性,针对问题围绕相关知识点进行层次(步骤)分明的论述或推导,明确各层次(步骤)间的逻辑关系。
四、对社会助学的要求
1.应熟知考试大纲对课程提出的总要求和各章的知识点。
2.应掌握各知识点要求达到的能力层次,并深刻理解对各知识点的考核目标。
3.辅导时,应以考试大纲为依据,指定的教材为基础,不要随意增删内容,以免与大纲脱节。
4.辅导时,应对学习方法进行指导,宜提倡“认真阅读教材,刻苦钻研教材,主动争取帮助,依靠自己学通”的方法。
5.辅导时,要注意突出重点,对考生提出的问题,不要有问即答,要积极启发引导。
6.注意对应考者能力的培养,特别是自学能力的培养,要引导考生逐步学会独立学习,在自学过程中善于提出问题,分析问题,做出判断,解决问题。
7.要使考生了解试题的难易与能力层次高低两者不完全是一回事,在各个能力层次中会存在着不同难度的试题。
8. 助学学时:本课程共5学分,建议总课时90学时,其中助学课时分配如下:
章 次 | 内 容 | 学 时 |
第一章 | 概述 | 4 |
第二章 | 高层建筑结构受力特点与结构概念设计 | 14 |
第三章 | 结构设计的一般原则 | 12 |
第四章 | 框架结构设计 | 22 |
第五章 | 剪力墙结构设计 | 18 |
第六章 | 框架-剪力墙结构设计 | 20 |
合 计 | 90 | |
五、关于命题考试的若干规定
(包括能力层次比例、难易度比例、内容程度比例、题型、考试方法和考试时间等)。
1.本大纲各章所提到的内容和考核目标都是考试内容。试题覆盖到章,适当突出重点。
2.试卷中对不同能力层次的试题比例大致是:“识记”为30%、“领会”为40%、“应用”为30%。
3.试题难易程度应合理:易、较易、较难、难比例为2:3:3:2。
4.每份试卷中,各类考核点所占比例约为:重点占65%,次重点占25%,一般占10%。
5.试题类型一般分为:单项选择题、简答题和计算题。
6.考试采用半开半闭卷笔试(计算题开卷),考试时间150分钟,采用百分制评分,60分合格。
六、题型示例
一. 选择题:
1. 抗震缝的最小宽度为:
A.70mm,B.80mm,C.90mm,D.100mm
2. 框架梁支座面筋配筋率不应超过:
A.1.5%,B.2.0%,C.2.5%,D.3.0%
3. 框架-剪力墙结构中,当总框架各层剪力VF小于下面值时,应取下面值:
A.0.1V0,B.0.2V0,C.0.3V0,D.0.4V0
4. 纯剪力墙结构最适合于下面哪种建筑
A.商场,B.住宅,C.写字楼,D.影剧院
5. 确定基础埋深时的房屋高度指:
A.从室外地面至楼梯间或电梯间屋面距离;B.从正负零至主体屋面的距离;C.从室外地面至主体屋面的距离;D.从地下室地面至楼梯间或电梯间屋面的距离。
6. 高层建筑基本风压W0应将荷载规范查出的值乘以下面系数
A.1.0,B.1.05,C.1.1,D.1.15
7. 结构平面布置时应尽量减小扭转,当存在扭转时,扭转为主的第一自振周期Tt与平动为主的第一自振周期T1之比,A级高度高层建筑不应大于:
A.0.9,B.1.0,C.1.1,D.1.2
8. 墙肢长度hw与墙厚bw之比在下面范围为短肢剪力墙,否则为异形柱或一般剪力墙。
A.3~6,B.4~7,C.5~8,D.6~9
9. 抗震设计时,剪力墙底部加强部位的高度可取:
A.墙肢总高度的1/8和底部两层二者的较大值,B.墙肢总高度的1/8和底部三层二者的较大值,C.墙肢总高度的1/7和底部两层二者的较大值,D.墙肢总高度的1/7和底部三层二者的较大值
10. 剪力墙相连梁端刚域长度等于
A.剪力墙水平长度,B.剪力墙截面高度一半,C.剪力墙截面高度一半减梁高的1/2,D.剪力墙截面高度一半减梁高1/4。
11. 对框架结构在水平荷载作用的侧移,下列说法正确的是
A.侧移主要是由梁柱弯曲变形产生的,侧移后的形态为剪切形
B.侧移主要是由梁柱剪切变形产生的,侧移后的形态为弯曲形
C.侧移主要是由梁柱弯曲变形产生的,侧移后的形态为弯曲形
D.侧移主要是由梁柱剪切变形产生的,侧移后的形态为剪切形
12. 下列说法错误的是
A.房屋平面设贯穿后浇带可使伸缩缝间距增长。
B.高低房屋交接处设后浇带可不设沉降缝。
C.伸缩缝、沉降缝可不满足抗震缝的宽度要求。
D.房屋平面外凸部分不能太长,否则应设抗震缝断开。
二. 简答题:
1. 剪力墙截面构造要求有哪些?
2. 剪力墙截面设计要进行哪些计算或验算?
三. 计算题:
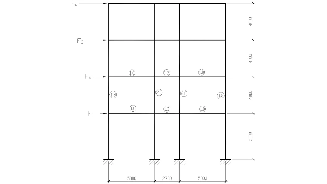
1. 一榀三跨四层平面框架,混凝土等级C25,地震作用引起的各层水平荷载如图所示,F1=30KN,F2=60KN,F3=90KN,F4=120KN,边柱截面尺寸350x450,中柱400x450,左、右边跨度5米,中跨跨度2.7米,底层柱高5米,其他层层高4米,左、右跨梁截面尺寸250x450,中跨梁250x400;各杆件相对线刚度如图所示,边梁1.0,中梁1.3,边柱1.8,中柱2.0;试用D值法计算二层中柱的弯矩。

2. 一框架-剪力墙结构房屋,在横向水平地震作用下计算简图如图所示(刚接体系),计算总剪力墙和总框架在第三层的剪力Vw、VF。已知总剪力墙抗弯刚度EJw=17000000kNm2,总框架抗推刚度(每层)CF=590000kN,总连梁转动刚度(每层)
=80000kN,总高度H=30.5m,计算截面取三层层高一半的位置。利用教材中铰接体系图表计算。



工作时间 09:00-23:00